ABSOLUTE SHOWSTOPPER - 5x3 + Pool + Pretty Pool Location
This five bedroom, three bathroom home was built by a fastidious owner/builder with no expense spared. Located in sought after Pretty Pool the two storey executive home is simply one of the Pilbara's finest properties. Ideal as a manager's residence, this listing boats spacious living areas, stunning kitchen, double sized bedrooms, outdoor patio, below ground pool, two car garage and a low maintenance yard.
Features Include:
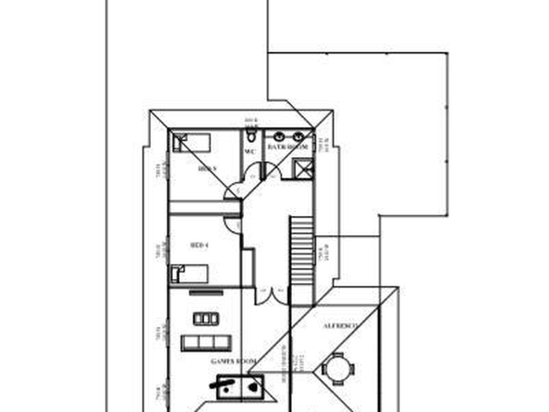
1st floor:
- Two bedrooms, one bathroom
- Large open plan games room
- Access to downstairs alfresco area and pool
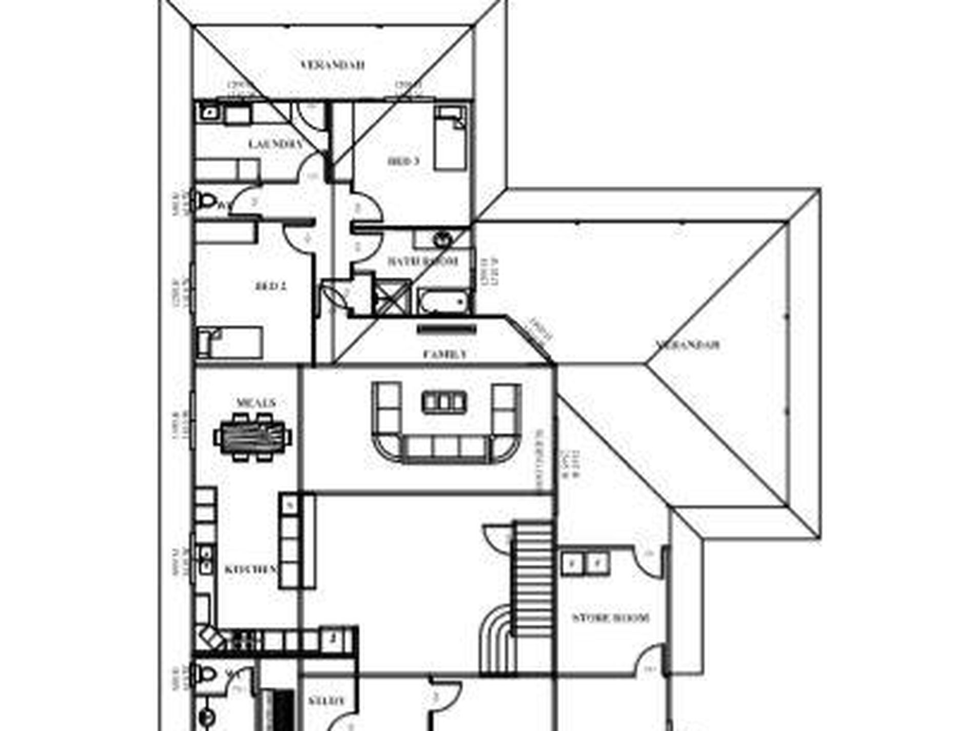
2nd floor:
- Stairwell opens onto upstairs living area
- Kitchen with island bench, ample storage
- Three further bedrooms including master
- Master bedroom with huge ensuite and walk-in robe
- Verandah
The outdoor patio and pool area is enticing, with artwork of the Pilbara displayed on the back fence/wall. This is definitely one of a kind and a must see for corporate tenants seeking quality, high-end property.
Call to view today










































