823m2 R20 Zoned Block! STAMPED DA Approval for ADDITIONAL FOUR 1x1 Units + existing 2x1 House!!
Welcome to 121a Kennedy Street - this MASSIVE block has already had the money INVESTED, time put in and plans DRAWN & STAMPED for Multiple STAND-ALONE UNITS!!!
With a R20 Zoned block - an existing 2x1 Home (rented for $750 per week!!!) with LOADS of additional space to add a further FOUR 1x1 units - this is a DEVELOPERS DREAM!!!!
This house used to be the original SOUTH HEDLAND POST OFFICE! Currently being used as a 2x1 Home - with caretakers paying $750 per week rent to the current owners - this property has soooo much potential!
What's even BETTER is my seller is prepared to hand over all their stamped and APPROVED DA and Floor plans for the development they were due to start this year! They will even send you the details for the Builder they had engaged! Literally - this is 'Shovel Ready' to go with a turnaround time expected to be done by next financial year!!!
With a change in circumstances - the seller is unable to see out his dream of building these units - so he is now passing the legacy and investment over to the next set of SAVVY buyers /investors / developers!
The existing home itself has a BRAND new and super modern and stylish open plan Kitchen and MASSIVE living and dining areas - this part of the home forms half of the floor plan and is all DONE with nothing left to do...
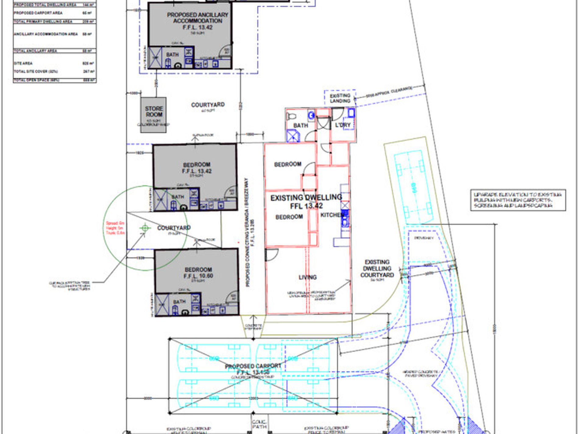
Older shell & roof aside... WHAT ABOUT THE BLOCK.... Lets be honest... that's the true WOW factor of this home... 824m2 worth of land! You could either completely re-develop, move in or rent the home and enjoy the income or put a granny flat on the back (with council approval of course).
Gosh this block is so big you could have the existing house, granny flat, pool AND shed if you really wanted to go all out! The options for this block and its home are only limited by your imagination!!!
Interested now???
Property Features include but are not limited to:
- 824m2 fully fenced block - R20 zoned for future development
- 2x1 generous sized original fibro home
- BRAND NEW updated and modern kitchen - ample storage solutions
- Open plan Living and dining area - generous living areas - actually MASSIVE area - opens from kitchen
- Updated neat and tidy bathroom
- 2 good sized bedrooms - complete with BIR's
- Overall the house has a very practical and large floor plan
- Home is super tidy and freshly painted throughout - inside and out!
- MASSIVE fully fenced block - multiple double gates at the front of the home allows for easy access of multiple cars, boats, trailers and caravans! Block is so large that you can physically drive a car right around the block and house!!!!
- Loads of space to park cars, boats, caravans etc - MASSIVE amount of room to add a granny flat (with council approval), build the DREAM Workshop/Shed AND even put in a Pool down the track! Or simply take over the DA the current owner has in place and build MASS accommodation!
- Undercover entertaining areas come off the side of the home
- Well established trees featuring an iconic Boab Tree - Low maintenance block!
- Walking distance to all THREE levels of schools, Primary School, Secondary School & TAFE all on your doorstep!
- Super pretty 'Street Appeal' - with ONE OF A KIND front fencing, decorative stones and even the original POST BOX - as this property USE TO BE the original South Hedland Post Office!!! HOW's that for history!
- Existing home is currently rented at $750 per week to the seller's caretakers - who would consider signing a lease for the next set of owners
NOW LETS TALK ABOUT THE DA APPROVAL!
- Stamped and Signed off by ToPH - approval for an ADDITIONAL Four 1x1 units / pods - all stand alone and self sufficient
- Approval for new roof to go over exiting 2x1 dwelling
- All plumbing works down and ready
- All plans, drawings, and building sketches available on request
- Builder on stand-by to have this project completed by EOFY 2026
- Once development completed - this would provide 6x5 - MASS accommodation for any companies out there wanting to get away from the camps!
- Over 55k already spent in getting this site 'Shovel Ready'
121a Kennedy Street truly has all the makings of the perfect entry level home! If you are prepared to roll up your sleeves and put in the time and money to do some minor repairs to bring out her true potential, then look no further! Complete with all the room in the world for a pool, massive shed, outdoor entertaining area, beautiful gardens and plenty of room for your kids to play.
For the Savvy Investors / Developers / Companies - where else are you going to find a "Shovel Ready" site with a home already built and generating $750 per week in rent????
Priced to sell - Call Danielle Collins - 0412 385 783 now for more information!
- Air Conditioning
- Outdoor Entertainment Area
- Fully Fenced
- Built-in Wardrobes


































































